Nos avis clients
Nos avis clients
0

LOCAL/BUREAU AVENUE DE PARIS

Chalon-sur-Saône (71100)
Réf : 7065

Sur un axe majeur de la ville, découvrez ce local pouvant accueillir des activités administratives telles qu'un cabinet comptable, une compagnie d'assurance ou mutuelle, diverses entreprises de prestation de service ou toute autre activité libérale.

Profitez de cet emplacement de qualité avec 5 places de stationnement privatives, clôturées par un portail, et l'usage exclusif d'un espace vert à l'arrière du bâtiment qui favorisera le bien-être de vos collaborateurs.

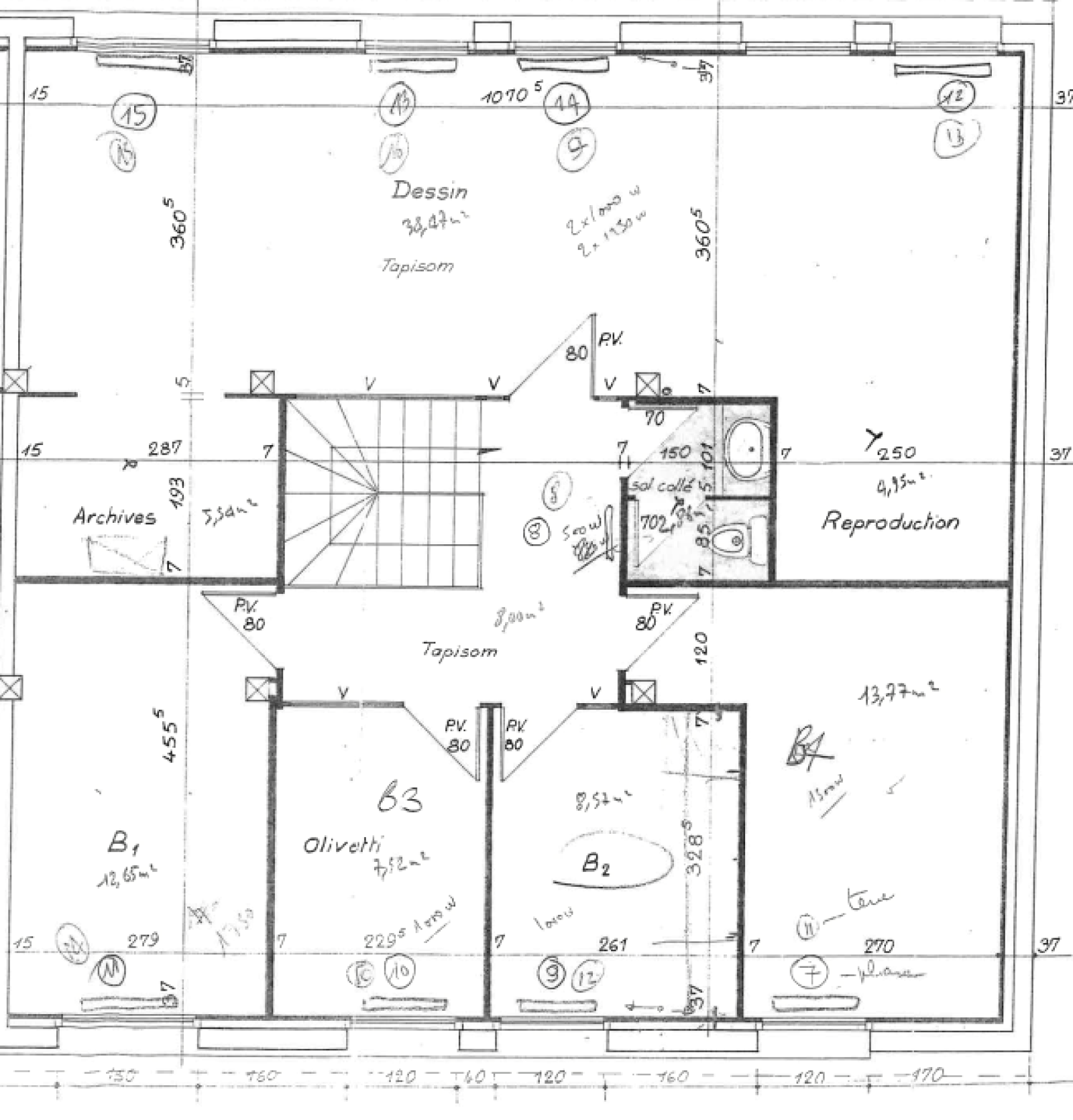
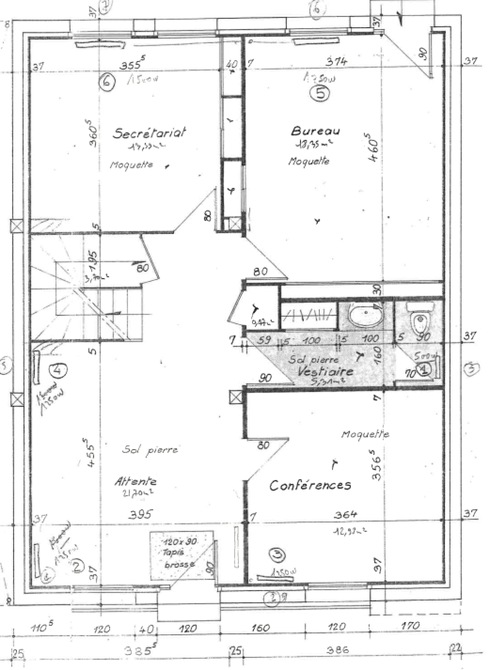
Le local est réparti sur deux niveaux :

  • Rez-de-chaussée : une grande réception avec un sas d'entrée, trois bureaux et des sanitaires. (sol carrelage et parquet bon état)
  • Niveau supérieur : un grand espace ouvert, deux bureaux, des sanitaires, une grande salle de réunion avec espace de rangement. (sol PVC et parquet bon état)
  • Sous-sol : une cave d'une trentaine de mètres carrés pouvant faire office d'archive.

L'ensemble de la cellule est équipé de climatisation réversible, double vitrage et volets roulants.

Loyer mensuel : 2 167,00 € HT


Les informations sur les risques auxquels ce bien est exposé sont disponibles sur le site Géorisques
Prix du loyer 2 167 € / mois HT - HC*
Niveau(x) 1

Caractéristiques du bien

Caractéristiques Valeurs
Type de transac Bureaux
Code postal 71100
Surface habitable (m²) 190 m²
Nombre de niveaux 1
Superficie (m²) 190
Mode de chauffage Climatisation
Type de chauffage Air pulsé
Format de chauffage Individuel
Année de construction 1974

Infos financières

Caractéristiques Valeurs
Loyer HT 2 167 € / mois
Dont état des lieux Non renseigné
Dépot de garantie 4 334 €

Bilans énergétiques

DPE GES
Ce bien vous intéresse ?
Fieldset par défaut
Fieldset par défaut
Validation

* Champs obligatoires

Contacter l'agence
Validation
Les informations recueillies sur ce formulaire sont enregistrées dans un fichier informatisé par La Boite Immo agissant comme Sous-traitant du traitement pour la gestion de la clientèle/prospects de l'Agence / du Réseau qui reste Responsable du Traitement de vos Données personnelles. La base légale du traitement repose sur l'intérêt légitime de l'Agence / du Réseau. Elles sont conservées jusqu'à demande de suppression et sont destinées à l'Agence / au Réseau. Conformément à la loi « informatique et libertés », vous disposez des droits d’accès, de rectification, d’effacement, d’opposition, de limitation et de portabilité de vos données. Vous pouvez retirer votre consentement à tout moment en contactant directement l’Agence / Le Réseau. Consultez le site https://cnil.fr/fr pour plus d’informations sur vos droits. Si vous estimez, après avoir contacté l'Agence / le Réseau, que vos droits « Informatique et Libertés » ne sont pas respectés, vous pouvez adresser une réclamation à la CNIL. Nous vous informons de l’existence de la liste d'opposition au démarchage téléphonique « Bloctel », sur laquelle vous pouvez vous inscrire ici : https://www.bloctel.gouv.fr Dans le cadre de la protection des Données personnelles, nous vous invitons à ne pas inscrire de Données sensibles dans le champ de saisie libre.
Ce site est protégé par reCAPTCHA, les Politiques de Confidentialité et les Conditions d'Utilisation de Google s'appliquent.

Localisationdu bien

  • Commerces et santé
  • Loisirs
  • Ecoles
  • Transports
  • Pratique

* HC : Hors charges

Ces biens peuvent vous intéresser