Nos avis clients
Nos avis clients
0

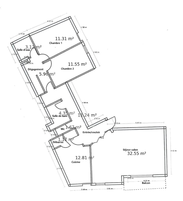
Grand T3 à vendre proche centre-ville

Chalon-sur-Saône (71100)
Réf : 7135

Idéalement situé, proche centre-ville dans une rue calme et peu passante.

Venez découvrir cet appartement qui bénéficie de nombreuses commodités.

Ce grand T3 de 95.87 m² dispose d’un salon-séjour donnant sur balcon, une cuisine séparée et aménagée.

Dans la continuité vous trouverez deux chambres, une salle de bains ainsi qu’une salle d’eau. (WC individuel).

Le bien possède un agencement optimisé avec un grand espace de vie ainsi qu’une partie dédiée aux chambres.

Venez découvrir cet appartement sans tarder qui offre de nombreuses possibilités d’agencement.

Idéal pour jeune couple ou retraités.


Les informations sur les risques auxquels ce bien est exposé sont disponibles sur le site Géorisques
Prix du bien 197 950 €
Pièce(s) 4
Chambre(s) 2

Caractéristiques du bien

Caractéristiques Valeurs
Code postal 71100
Surface habitable (m²) 95,73 m²
Surface loi Carrez (m²) 32,55 m²
Nombre de chambre(s) 2
Nombre de pièces 4
Etage 1
Ascenseur OUI
Nb de salle de bains 1
Nb de salle d'eau 1
Mode de chauffage Gaz
Type de chauffage TRAD_TYPE_CHAUFF_CHAUDIERE
Format de chauffage Individuel
Interphone OUI
Visiophone NON
Balcon OUI
Nombre de garage 2
Cave OUI
Surface cave (m²) 4.17
Année de construction 1988

Infos financières

Caractéristiques Valeurs
Prix de vente honoraires TTC inclus 197 950 €
Prix de vente honoraires TTC exclus 185 000 €
Honoraires TTC à la charge acquéreur 7 %
Taxe foncière annuelle 2 050 €

Bilans énergétiques

DPE GES
Ce bien vous intéresse ?
Fieldset par défaut
Fieldset par défaut
Validation

* Champs obligatoires

Contacter l'agence
Validation
Les informations recueillies sur ce formulaire sont enregistrées dans un fichier informatisé par La Boite Immo agissant comme Sous-traitant du traitement pour la gestion de la clientèle/prospects de l'Agence / du Réseau qui reste Responsable du Traitement de vos Données personnelles. La base légale du traitement repose sur l'intérêt légitime de l'Agence / du Réseau. Elles sont conservées jusqu'à demande de suppression et sont destinées à l'Agence / au Réseau. Conformément à la loi « informatique et libertés », vous disposez des droits d’accès, de rectification, d’effacement, d’opposition, de limitation et de portabilité de vos données. Vous pouvez retirer votre consentement à tout moment en contactant directement l’Agence / Le Réseau. Consultez le site https://cnil.fr/fr pour plus d’informations sur vos droits. Si vous estimez, après avoir contacté l'Agence / le Réseau, que vos droits « Informatique et Libertés » ne sont pas respectés, vous pouvez adresser une réclamation à la CNIL. Nous vous informons de l’existence de la liste d'opposition au démarchage téléphonique « Bloctel », sur laquelle vous pouvez vous inscrire ici : https://www.bloctel.gouv.fr Dans le cadre de la protection des Données personnelles, nous vous invitons à ne pas inscrire de Données sensibles dans le champ de saisie libre.
Ce site est protégé par reCAPTCHA, les Politiques de Confidentialité et les Conditions d'Utilisation de Google s'appliquent.

Localisationdu bien

  • Commerces et santé
  • Loisirs
  • Ecoles
  • Transports
  • Pratique